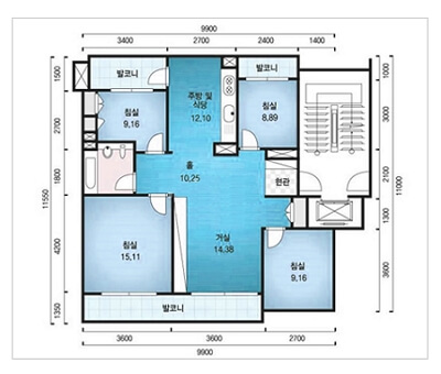
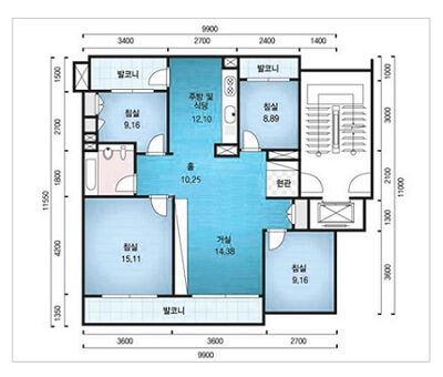
인테리어나 가구 배치하실 때 제일 중요한 아파트 평면도 찾고 계신가요? 이 글에서는 아파트 평면도 조회, 열람, 확인하는 방법에 대해서 알려드립니다. 쉽게 온라인으로 내가 구하는 건물의 정확한 평면도를 조회, 다운받아 사용해 보시길 바랍니다. 오프라인으로도 아파트 평면도 찾는 방법 알려드립니다!
목차
아파트 평면도 조회하는 방법



인테리어 준비중이신가요? 가구 배치를 위해서는 아파트 평면도를 필수입니다. 하지만 생각보다 쉽게 구하기가 어렵죠? 온라인, 오프라인을 통해 아파트 평면도 조회, 열람, 발급받으실 수 있는 방법이 있습니다.
급하신 분들을 위해 우선 평면도를 찾을 수 있는 사이트를 바로 알려드립니다. 아래 버튼을 통해 내가 원하는 건물의 평면도를 찾아 발급 받아 보세요! 발급 방법을 모르시겠다면 아래 글들을 참고해 주세요!
온라인으로 쉽게 평면도 열람하는 방법
우리나라의 건물, 아파트 평면도는 위 사진처럼 건축행정시스템 세움터(바로가기)를 통해 조회를 하고 나서 열람을 하거나 발급받아 출력할 수 있습니다.
상단 메뉴 중 첫 번째 민원서비스를 선택하세요

아래 버튼을 통해 내가 원하는 건물, 아파트 주택 평면도를 조회하여 발급받아보세요.
첫 번째로는 맨 처음 상단 메뉴 중 첫번째 민원서비스를 선택해 주세요.
건축물 현황도 발급을 선택해 주세요.

두 번째 발급서비스 중에서 3번째 건축물현황도 발급을 선택해 주세요
세움터 사이트의 로그인을 해주세요

세움터의 장점은 로그인을 할 경우 회원/ 비회원 선택이 가능합니다.
자주 평면도를 확인하셔야 한다면 회원 가입하셔서 로그인하시는 것을 추천합니다.
일회성으로 평면도가 필요하셨다면 회원가입 필요 없이 비회원으로도 평면도 조회와 열람, 발급이 가능합니다. 이후 주소 검색 및 주민등록번호를 입력하고 조회 버튼을 눌러주세요.
집합건축물대장(전유부), 동/호수, 건축물 현황도, 평면도 순으로 체크를 해주세요 위 건축물대장을 발급 및 열람 버튼을 선택해 주세요. 이후 본인인증을 통해 정식으로 인테리어 건축 시에도 사용할 수 있는 정식 평면도를 발급받으실 수 있는 방법이 있습니다.
발급유형을 선택해 주세요

본인 소유, 본인 소유가 아닌 경우 다중이용 건축물 종류별로 평면도를 발급받으실 수 있습니다.
이때 본인소유인 경우에는 로그인을 통해 바로 발급이 가능합니다.
온라인 발급시 주의사항
세움터 사이트(바로가기)를 이용하시는 경우에는 오프라인과 다르게 소유자 본인만 발급이 가능합니다.
평면도 발급 신청을 하셨다면?

평면도 발급 신청을 선택하셨나요? 그렇다면 이제 위 사진처럼 빨간 네모박스 안에 내가 찾는 건축물 소재지를 입력해 보세요. 주소를 입력하신 다음 엔터를 누르거나 옆에 돋보기 모양을 선택해 주세요.
아래 조회 결과가 뜬 다음 신청한 민원 담기를 통해 내가 원하는 건축물의 평면도를 발급 신청이 완성됩니다. 이제 아래 버튼을 통해 천천히 발급 신청을 시작해 보세요

내가 신청한 건축물의 평면도는 발급을 받을 수도 있고 열람도 가능합니다. 내가 원하는 방식으로 선택해 보세요. 발급받으시는 경우에는 꼭 프린터 연결상태를 한번 더 체크해 보시길 바랍니다.
오프라인으로 평면도 구하는 방법



위에서는 온라인으로 건축물, 아파트 평면도 조회해서 열람, 발급받는 방법에 대해서 소개드렸습니다. 아래 글에서는 오프라인으로 평면도 구하는 방법에 대해서 소개합니다.
가장 대표적인 곳은 아래와 같습니다.
1) 아파트 관리 사무실
2) 관공서
이때 관공서는 시청, 군청, 구청, 주민센터에서 발급받을 수 있으며 전국 어디서나 평면도를 신청해서 발급받은 실 수 있습니다. 발급받으려는 아파트의 위치는 지역에 상관없이 위에 나와 있는 관광서에 발급받게 됩니다.
오프라인 평면도 신청시 필수 준비물
- 오프라인으로 평면도를 발급받기 위해서는 준비물이 필요합니다.
- 준비물은 아파트 소유자 신분증, 소유자 이외에 신청할 경우에는 신분증과 위임장이 있어야 합니다.
- 위장장에는 반드시 소유자의 도장이 낙인 되어 있어야 합니다.
- 임차인 신청 시에는 임차 계약서가 필요합니다.
지금까지 인테리어전, 가구배치 전에 무조건 있어야 하는 건축물, 아파트 평면도 조회하여 열람하거나 발급받아 평면도를 구하는 방법에 대해서 설명드렸습니다.
